3a Ellington Street Caulfield South James Home Ratings
askJAMES. Real answers. Only ours.
1. Should you visit?
3A Ellington Street, Caulfield South
James Home Rating: 531
Inspected: 23/8/2025
Position
The property sits close to Hawthorn Road cafés and shops, which is a real positive for lifestyle buyers. On inspection day, the open was busy — plenty of people through, which confirms it has broad appeal.
Property
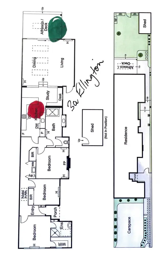
This is very much a low-cost entry into Caulfield South. That’s its main attraction. The home itself is modest, functional, and comes with some compromises:
- Orientation: South-facing rear
- Floor plan: Very basic, including a walkthrough kitchen and a couple of internal steps that interrupt flow
- Connection: Semi-detached, joined at the hip to the neighbour
- Car parking: Spaces at the front are a little tight, but the land width means you’ll likely fit two.
- Rear access: Limited, but available
- Backyard: A good-sized outdoor space, which balances the smaller house footprint
Buyer Fit
This home will suit first-home buyers, young couples, small families, or even investors. It’s not about architectural brilliance or standout design — it’s about affordability in a great location.
The big questions for buyers here:
- Do you like it?
- Can you afford it?
- Can you beat the crowd who will also want it?
Market & Value
- Expect strong interest — the price point and location make it accessible.
- It’s not a prestige property, but as an entry into Caulfield South, it works.
Summary
A modest, functional entry-level property in Caulfield South with good land width, rear yard, and parking. South rear and basic floor plan are negatives, but location near Hawthorn Road is the clear plus. This one will come down to budget and competition on the day.
Entry-level Caulfield South home at 3A Ellington Street. Semi-detached, south rear, basic floor plan, but good land width, backyard, and top location near cafés.
2. Should you consider due diligence seriously?
Floor plan
3. What should you offer?
Deeper Dive: start with a question of askJAMES on this specific home such as what do we think or value or how to negotiate
| Land | Imp sqm | ||||||
| 72 | Almond | St | CAULFIELD SOUTH | 18/07/2025 | $1,240,000 | 309 | $4,013 |
| 245 | Bambra | Rd | CAULFIELD SOUTH | 01/06/2025 | $1,285,000 | 320 | $4,016 |
| 9 | Alder | St | CAULFIELD SOUTH | 07/12/2024 | $1,137,500 | 308 | $3,693 |
| 8 | Filbert | St | CAULFIELD SOUTH | 28/10/2024 | $1,500,000 | 368 | $4,076 |
| 36 | Teak | St | CAULFIELD SOUTH | 26/10/2024 | $1,810,000 | 404 | $4,480 |
| 282 | Bambra | Rd | CAULFIELD SOUTH | 15/09/2024 | $1,475,000 | 372 | $3,965 |
There are many opinions of value—but three that really matter: yours, the seller’s, and the market’s. And while only one price will ultimately seal the deal, each number carries a different lens—logic, emotion, positioning. To improve your odds of buying well—not overpaying, not missing out—it helps to understand where the market sits. That’s why we provide a market range, not a single figure. This range reflects agent input, your feedback, peer views, and emotional or practical drivers like living near family or renovation upside. Within it, we define a Control Price—usually the midpoint—your value line for judging overs or unders.
JAMES CONTROL VALUE RANGE CALCULATOR
YOUR CONTROL RANGE
BASE: $0
IN THE MIX UNDERS/OVERS LINE: $0
90% CHANCE OF BUY: $0
What is the JAMES CONTROL RANGE $ we would see good buying at?
MAL JAMES 0408 107 988 or mal@james.net.au
What about the future? Taking the sale price compared to others and add reno’s and other costs what is your likely position in 10 years?
Lorem ipsum dolor sit amet, consectetur adipiscing elit. Ut elit tellus, luctus nec ullamcorper mattis, pulvinar dapibus leo.