7 Glendearg Grove Malvern - James Buyer Advocates
7 Glendearg Grove, Malvern – A Sandwich of Strengths and Soft Spots
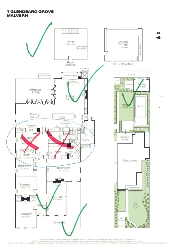
Glendearg Grove has long been a quiet achiever — a leafy, consistent street with heritage weight and lifestyle pull. Number 7 carries that rhythm from the curb: strong facade, established gardens, and a warm presence opposite parkland. The land is significant (1154sqm), and both the front and rear hold real appeal. The contemporary extension at the back is particularly well-executed — generous, well-zoned, and bathed in natural light. From the outside in, the home opens with confidence.
But between those two bookends is where things waver. The central section lacks the same clarity — the master placement feels congested, the flow between bedrooms and living is disrupted, and the transitional spaces feel more like leftover rooms than connective tissue. There’s no doubt the rear living works, and the entry impresses — but the journey between the two asks more questions than it answers. Families needing separation (teenagers, guests, multi-gen) may notice it early.
At a quoted top of $8.3m, this home sits in a competitive bracket where the emotional response needs to meet functional expectation. If you’re caught between head and heart on a home like this, that’s a space we often step into — to clarify, not convince.
Mal James
James Buyer Advocates
0408 107 988
mal@james.net.au
Brighton | Toorak | Kew
- JAMES Home Rating
- James VALUE Adds