67 Littlewood Street Hampton - James Buyer Advocates
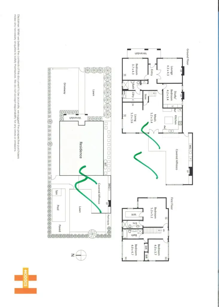
67 Littlewood St, Hampton — north-rear, pool, solid but unexciting (652)
Why it works
Classic Cal-bungalow on ~624sqm with an excellent north-facing rear.
Big pool/alfresco that reads well for teens; easy supervision from living.
Practical layout (kids upstairs, parents downstairs possible).
Trade-offs
Reno is average and a bit tight in places; overall build feels mid-tier.
No ensuite to main currently (allow to add).
Not a “wow” house—buy it for function, not drama.
Money lens
Guide tops around $2.99m. At that level it’s a serviceable Hampton family buy if you price in: ensuite addition, light upgrades, and any joinery/plant refresh. James Home Rating: 652 (price-sensitive B).
Next smart moves
Building/pest; roof, subfloor, services; pool shell/plant and compliance.
Cost a downstairs main + ensuite (or upstairs re-plan) and minor kitchen/joinery lift.
If campaign’s hot: win on certainty (clean terms, short fuse). If quiet: anchor hard—there are comparable north-rear options nearby.
- JAMES Home Rating
- James VALUE Adds
- Click Address through to Completed James Home Rating
- Bayside Port Phillip Fresh Ratings
- Bayside Port Phillip Rated For Sale
- Bayside Port Phillip Rated & Sold
- James Home Ratings for nearly 25 years
The James Home Rating System for Buyers
Three Ps. 1,000 points. A lifetime of difference.
Over the past 25 years, we’ve developed and refined one of Melbourne’s most trusted property assessment tools—
James Home Ratings. Built to bring science, structure, and strategy to high-stakes real estate decisions, it’s quietly helped more buyers and buy/sellers make more money than any other buyer advocate method in the city.
What Is It?
The James Home Rating is a 1,000-point scoring system based on the 3 critical drivers of long-term property value:
- Position – Street, precinct, orientation, land size, walkability, and school zones.
- Property – Building size, flow, floorplan, architecture, renovation quality, potential.
- Price – Relative value based on recent sales, market cycle timing, and agent positioning. Emotions
Each home is scored independently and consistently, based on how it aligns with long-term demand and supply fundamentals—not short-term trends or agent spin against other similar types of homes.
Why It Works – Patterns
Because real estate, at its core, is about human behaviour—and history repeats itself.
Over decades, we’ve tracked what buyers want, what they avoid, and where they pay premiums. Certain homes—especially true A-Graders—attract stronger demand in every market. Others, like C-Graders, only sell well in boom times.
Our 1,000-point system exposes where a home really sits in that cycle. That insight gives you:
- Confidence to buy strong,
- Courage to walk away from trouble, and
- Clarity to align your sell/buy strategy with your life goals.
A, B, C-Grade Homes – Know the Difference
- A-Grade: Always in demand. Rare, proven, and resilient through market shifts.
- B-Grade: Good, but situational. Can work well when bought or sold smartly.
- C-Grade: Riskier. More emotion-driven, often overhyped, and harder to recover value.
The James Home Rating makes these differences clear—before you commit.
What the Scores Mean
Here’s how the James Home Rating benchmarks property quality across inner Melbourne:
- 500 – Maybe ok but it has serious issues to consider
- 600 – Average: Typical for many Inner Melbourne homes
- 700 – Solid: Better than many, with clear buyer appeal
- 750–800 – Above Average: Strong fundamentals, few weaknesses
- 800+ – Exceptional: A-Grade, no obvious dealbreakers, rare and highly sought-after
Why It’s Made Clients Millions
Because clarity beats chaos. Whether you’re buying, selling, or doing both at once, the James Home Rating:
- Finds value others miss
- Exposes flaws hidden beneath polish
- Aligns your decision with long-term truth, not short-term noise
We’ve used it to protect clients, unlock better homes, and negotiate stronger outcomes—time and again for over 25 years – it is patented.
The James Home Rating System for Buy Sellers
Why the James Home Rating Works When You’re Selling
Science, structure, and serious clarity—for stronger decisions and better results.
Selling a home—especially in Melbourne’s inner suburbs—requires more than a good agent and some fresh paint. To get the best price from the best buyer, you first need to know what your home is truly worth, not just what an agent tells you.
That’s where the James Home Rating becomes a game-changer.
It’s Scientific. It’s Strategic. It’s Seller-Smart.
This isn’t guesswork or gut feel. Our 1,000-point scoring system is built around 3 core value pillars:
- Position – Location, street quality, orientation, amenity
- Property – Land size, architecture, layout flow, condition, scope
- Price – Based on real market dynamics and long-term performance
Each home is evaluated across a lot of PPP issues. From traffic noise to natural light, from ceiling heights to buyer emotion triggers—nothing is left out.
Why Sellers Use It
When you’re selling and planning to buy again, clarity is power.
The James Home Rating helps you:
- Understand your true market position before listing
- Avoid underquoting or overhyping, which can backfire
- Strategically align your sell/buy timing to minimise stress
- Pre-empt objections and improve buyer perception
- Back up your price expectations with logic—not hope
It’s not just for buyers—it’s a powerful tool for price-setting, deal-structuring, and agent accountability.
What the Scores Mean
Here’s how the James Home Rating benchmarks property quality across inner Melbourne:
- 500 – Maybe ok but it has serious issues to consider
- 600 – Average: Typical for many Inner Melbourne homes
- 700 – Solid: Better than many, with clear buyer appeal
- 750–800 – Above Average: Strong fundamentals, few weaknesses
- 800+ – Exceptional: A-Grade, no obvious dealbreakers, rare and highly sought-after
Bottom Line
The James Home Rating gives you what emotion and opinion can’t: a scientific, structured, and strategic understanding of your property.
Whether you’re buying, selling, or both, it’s the most powerful way to stay in control, avoid costly mistakes, and walk into every decision with confidence.
Clarity leads to stronger outcomes.
And stronger outcomes lead to better lives.