71 Mason Street Hawthorn – James Buyer Advocates
71 Mason Street, Hawthorn – Park-front charm with cosy edges
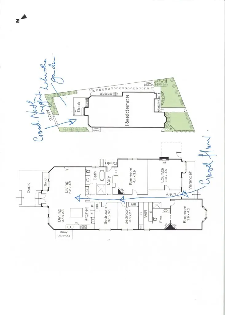
Across from one of Hawthorn’s best little parks, 71 Mason Street is a quaint Edwardian that genuinely feels like a home from another era – in a good way. Verandah, period façade, established garden and that green outlook all tick the emotional box straight away. You’re close to shops, transport and amenities, and Mason Street itself is a street I rate highly – I’ve bought a number of homes here over the years.
Inside, it’s compact but well planned. The entry hall runs you past the main bedroom with ensuite and on to two further bedrooms with a shared central bathroom – a sensible set-up for a couple or a young family. Ceiling heights, hall width and room sizes all contribute to a “cosy” feel that some will love and others might find a touch tight. Rear living opens to northerly light, so the back half of the home feels bright and connected to the garden.
Car access from the rear lane is there, but it’s tight and will never be the property’s strongest point.
On price, the quote in the mid-$3m range feels on the strong side for what is a smaller home with some access compromises – but the park opposite and the position generally do a lot of heavy lifting.
This is one where you need to weigh how much those weaknesses matter to you; if you value character, outlook and location over size and garaging, it could be a very smart long-term hold.
Want tight comps and a ceiling price before you move? James Buyer Advocates / James Buy Sell — clarity → compare → negotiate. 0408 107 988.
- Click Address through to Completed James Home Rating
- Boroondara This Month
- Boroondara Rated & Sold
- Bayside Port Phillip Rated For Sale
- Bayside Port Phillip Rated & Sold
- Stonnington This Month
- Stonnington Rated & Sold
James Home Ratings is a 25 year old, patented, 1500 buy/sells plus 1,000-point scoring system based on the 3 critical drivers of long-term property value:
Three Pillar Value Drivers
- POSITION — “Where money is attracted to”
Street appeal, precinct, orientation, land size, walkability, school zones - PROPERTY — “Where money is spent”
Flow, floorplan, architecture, renovation quality, future potential - PRICE — “What the market rewards”
Relative value vs price paid, cycle timing, agent positioning
Why It Works – Patterns
Because real estate, at its core, is about human behaviour—and history repeats itself.
Each home is scored independently and consistently, based on how it aligns with long-term demand and supply fundamentals for it’s specific area property type—that way you can compare a block of land with an apartment in different areas with different budgets..
A, B, C-Grade – Know the Difference
- A-Grade: Always in demand. Rare, proven, and resilient through market shifts.
- B-Grade: Good, but situational. Can work well when bought or sold smartly.
- C-Grade: Riskier. More emotion-driven, often overhyped, and harder to recover value.
What Others Do | What We Do |
Gut feel and emotion | Science and structure |
Agent spin and hype | Independent, consistent scoring |
Short-term trends | Long-term fundamentals |
Comparing apples to oranges | Same property type, different budgets, objectively assessed |
What the Scores Mean
- 500 – Maybe ok but it has serious issues to consider
- 600 – Average: Typical for many Inner Melbourne homes
- 700 – Above Average: Strong fundamentals, few weaknesses
- 800+ – Exceptional: A-Grade, no obvious dealbreakers, rare and highly sought-after
Know the difference, know your grade before you pay the price buying or selling.